Überblick und Hintergrund
Aufgabenformen bestehen aus einem Nadel-, Rauten- und Quadrat-Symbol auf der Registerkarte "Aufgaben" - die Form einer Aufgabe zeigt an, ob und wie diese Aufgabe mit einem Plan zusammenhängt:
Pin-Symbol - Aufgabe an einer bestimmten Stelle innerhalb eines Plans
Wenn eine Aufgabe an einen Plan "angeheftet" ist (z. B. wenn die Aufgabe aus einem Plan erstellt und an einem bestimmten Ort platziert wurde), nimmt diese Aufgabe die Form einer "Nadel" an, um zu zeigen, wo auf dem Plan die Aufgabe relevant ist:
Hinweis: Die x & y-Koordinaten aller angehefteten Aufgaben können in einem .CSV-Aufgabenbericht eingesehen werden.
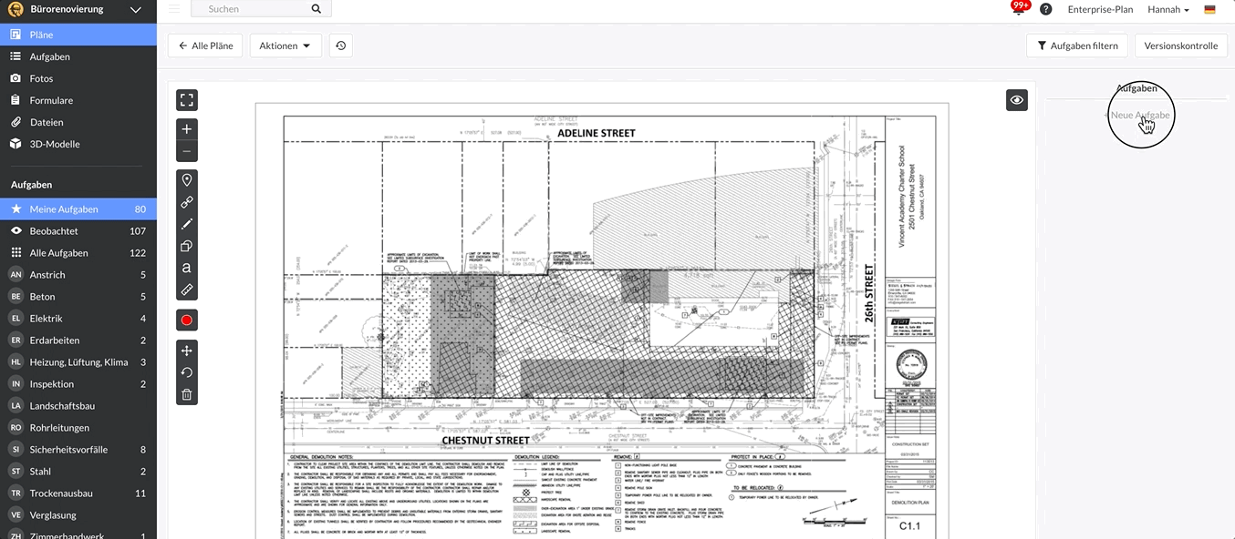
Diamantensymbol - Aufgabe in Verbindung mit einem Plan
Aufgaben, die mit einem Plan verbunden sind, aber nicht an einer bestimmten Stelle des Plans liegen, nehmen eine Diamantenform an. Diamantenaufgaben können weitreichende Probleme oder Kommentare beschreiben, die für die gesamte Zeichnung relevant sind.
Eine Aufgabe mit Diamantensymbol wird erstellt, wenn eine Aufgabe über die Seitenleiste "+ Neue Aufgabe" rechts neben einem Plan erstellt wird:
Quadratisches Symbol - nicht mit einem Plan verbunden
Aufgaben, die direkt auf der Registerkarte Aufgaben erstellt werden, sind mit einem quadratischen Symbol gekennzeichnet, um anzuzeigen, dass sie nicht mit einem Plan verbunden sind. Diese können darüber hinaus allgemeine Arbeiten oder Meilensteine für das Projekt selbst bezeichnen und sind nicht mit einem bestimmten Plan oder einem Ort auf einem Plan verbunden.
Diese Aufgaben können später auf einen Plan verschoben werden, um an einen Plan "angeheftet" zu werden. Wenn unter den Aufgabenattributen einer quadratischen Aufgabe ein "Plan" ausgewählt wird, nimmt die Aufgabe die Form eines Diamanten an:
Weitere Informationen
Video-Anleitung zum Erstellen von Aufgaben