Panoramica e introduzione
Visualizzare e annotare le planimetrie è una funzione chiave di Fieldwire. Le annotazioni sui disegni costruttivi permettono di contrassegnare aree specifiche che richiedono attenzione e tenere traccia dei progressi.
Tutti gli utenti del progetto possono visualizzare le annotazioni pubbliche inserite nelle planimetrie, sia cellulare che tramite Fieldwire web. Le annotazioni vengono trasferite automaticamente alle nuove versioni delle planimetrie quando queste vengono importate, in modo da avere una cronologia degli inserimenti delle annotazioni.
Questo articolo descrive come sfruttare le funzioni di annotazione sulle app mobili Fieldwire.
- Abbonamento: Basic, Pro, Business e Business plus
- Autorizzazioni: admin e member di progetto possono creare annotazioni pubbliche e private, i follower di progetto possono creare solo annotazioni private. Per maggiori informazioni sui permessi, consulta questi articoli:Introduzione ai differenti livelli di accesso al progetto: admin, member e follower; Cosa posso fare come follower di progetto?
-
Piattaforme: iOS/Android e la versione web.
Sommario
La scheda planimetrie
Le planimetrie importate nei progetti diventano accessibili anche tramite la versione mobile di Fieldwire, accedendo alla scheda "Planimetrie". Seleziona uno dei riquadri della planimetria per aprire la visualizzazione planimetria:
Nota: il numero blu in fondo alla miniatura della planimetria indica quante attività sono state appuntate alla planimetria; è possibile impostare la categoria da visualizzare in modo da mostrare solo quelle attività associate ad una precisa categoria.
iOS
Se utilizzi un iPhone, le planimetrie vengono mostrate sotto forma di elenco :
Android:
Sui dispositivi Android, le planimetrie vengono mostrate come miniature:
Puoi usare la barra di ricerca per trovare le tue planimetrie utilizzando il nome del file oppure i tag, così da filtrare i risultati.
Quando utilizzi la ricerca, verranno mostrati:
- il numero di attività presenti sulla planimetria,
- eventuali avvisi di conflitti tra versioni,
- un chiaro messaggio “nessun risultato trovato” quando non ci sono corrispondenze.
Per usare i tag, ricordati di inserire il simbolo “#”: questo ti permette di aggiungere più tag e nasconde automaticamente quelli che hai già selezionato.
La Vista della Planimetria
La vista della singola planimetria offre numerose funzionalità che ti permettono di condividere il disegno, aggiungere attività e annotazioni, e molto altro!
Visualizzare le versioni precedenti
Scorri il dito verso l'alto per vedere le versioni precedenti della planimetria. Sulla planimetria apparirà una filigrana che indica che si tratta di una versione non più attuale:
È inoltre possibile cambiare la versione in esame o confrontare le versioni (o altre planimetrie) selezionando il selettore nell'angolo in basso a destra:
Nota: il confronto delle planimetrie è disponibile per i progetti coperti da abbonamenti Pro e Business.
Condividere una planimetria
Quando visualizzi una singola planimetria sul tuo dispositivo mobile, puoi toccare i tre puntini nell’angolo in alto a destra per accedere alle opzioni di condivisione della planimetria.
Da qui puoi:
- utilizzare l’opzione “Esporta PDF” per scaricare una versione PDF della planimetria;
- “Condividere un ritaglio della planimetria” (crop) della porzione che ti interessa;
- oppure “Condividere il link della planimetria”.
Puoi comunque scegliere di inviare il link della planimetria anche tramite altre app, incluse altre applicazioni di posta o di messaggistica.
Tieni però presente che la/le persona/e a cui invii il link dovranno avere accesso al tuo progetto Fieldwire per poter visualizzare la planimetria.
Nota: Su iOS, per accedere a queste opzioni dovrai toccare il pulsante “Condividi”, evidenziato nello screenshot qui sotto.
La barra degli strumenti di annotazione
Clicca sulla freccia in basso a destra per aprire la barra degli strumenti di annotazione. Admin e member possono accedere a tutti gli strumenti di annotazione:
I follower di progetto hanno accesso alle attività e possono creare annotazioni private:
Nota: adesso è possibile creare annotazioni anche sulle foto allegate direttamente a planimetrie, moduli e richieste di informazioni. Per eliminare un'annotazione è necessario premere sull'annotazione, direttamente, sulla foto e questo farà apparire un messaggio, proprio come si fa per eliminare un messaggio da un'attività sul cellulare.
Attività
Le attività sono uno strumento con cui è possibile porre domande, documentare il lavoro svolto e sollevare questioni da affrontare, il tutto in modo semplice e trasparente. Puoi creare le attività direttamente dalla barra degli strumenti di annotazione e collocarle poi dove richiesto nella planimetria:
La barra laterale a destra consente di visualizzare tutte le attività associate alla planimetria; è possibile filtrare le attività per categoria, assegnatario o status e ordinare le attività per attributi comuni. Inoltre, se vuoi creare un'attività associata a una planimetria, ma senza doverla appuntare in una posizione specifica, puoi usare la barra laterale a sinistra per creare un'attività qui:
Nota: la forma dell'attività ne indica il tipo di associazione con la planimetria. I "pin" indicano che le attività sono associate con una posizione specifica della planimetria. Il "diamante" indica invece che l'attività è associata a un foglio, ma non necessariamente a una posizione specifica nella planimetria.
Nota: con le posizioni nidificate, le posizioni sono ordinate nel contesto delle altre posizioni nidificate, anziché raggruppando le posizioni con nomi simili.
Puoi saperne di più sulle attività in questi articoli:
- Cos'è un'attività?
- Cosa rappresentano le forme delle attività?
- Guida pratica: come configurare al meglio le attività per i tuoi report
- Posizioni nidificate
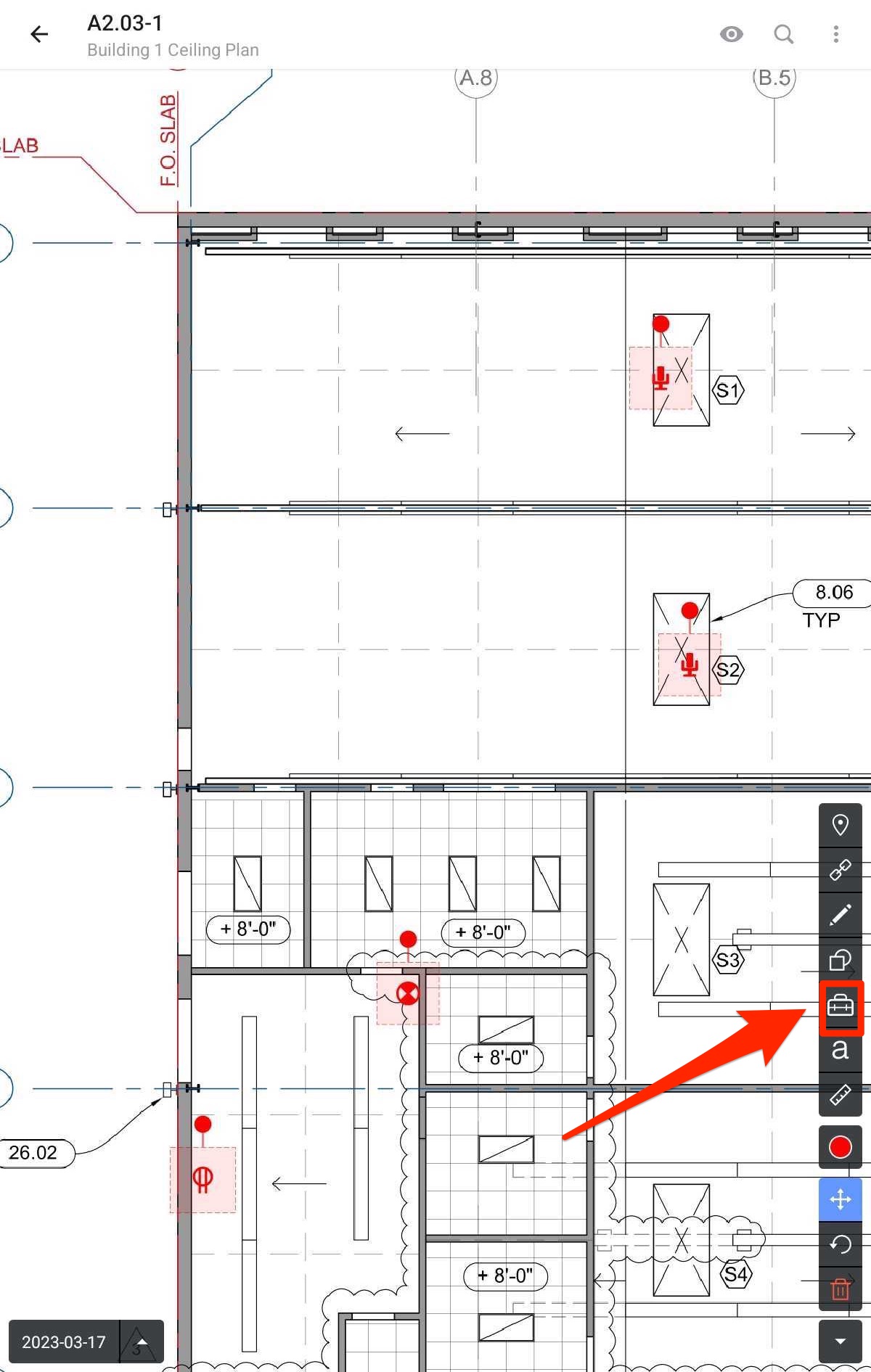
Allegati
Lo strumento di collegamento consente di aggiungere link ipertestuali a planimetrie, foto, file e moduli direttamente sulla planimetria desiderata:
Nota: le foto dei progressi sono solo a scopo di documentazione. Se c'è da seguire un problema o altra azione di cui si sta monitorando il completamento, è preferibile aggiungere attività complete di foto. Come i collegamenti ipertestuali alle foto, le attività possono contenere quante immagini si desidera.
La prima opzione serve a inserire collegamenti verso altri fogli della planimetria.
La seconda opzione, l’icona della fotocamera, ti consente di allegare foto al foglio della planimetria
Nota: con la versione mobile di Fieldwire non è possibile importare in questo modo una foto preesistente dalla scheda delle foto al foglio della planimetria. È possibile però scattare foto attraverso la fotocamera del dispositivo, che nell'immagine evidenziata sopra è indicata dall'icona della fotocamera. Le foto vengono quindi archiviate nella scheda "Foto" di Fieldwire.
La terza opzione, l'icona della graffetta, ti consente di allegare file ai fogli di planimetria. Selezionando quest'opzione, puoi importare nei fogli di planimetria sia file nuovi che preesistenti.
Selezionando "Nuovo file", è possibile caricare un file pdf dal proprio dispositivo o da Box / Dropbox / Google Drive, se questi sono collegati a Fieldwire.
Selezionando "File esistente", è possibile scegliere dall'elenco dei file già presenti nella scheda dei file di Fieldwire.
La quarta opzione, l’icona del blocco appunti, ti consente di allegare moduli ai fogli di planimetria, se sei un utente Business.
Quando si aggiunge l'icona al foglio di planimetria, puoi scegliere se aggiungere un nuovo modulo o utilizzare un modulo già esistente. Scegliendo "Nuovo modulo", ti verrà chiesto di scegliere il modello di modulo da utilizzare e potrai così creare e compilare un nuovo modulo.
Se scegli "Modulo esistente", potrai allegare qualsiasi modulo creato e già presente nella scheda dei moduli.
Annotazioni
Gli strumenti di annotazione ti permettono di creare linee libere ed evidenziazioni di vario spessore e colore. Puoi anche aggiungere linee rette, line spezzate e frecce. Sono inoltre disponibili forme come nuvole, rettangoli, cerchi e uno strumento per la creazione di forme multilinea:
Quando si aggiunge una linea retta, una linea spezzata o una freccia, appare una lente di ingrandimento che consente una maggiore precisione:
Sulle planimetrie è possibile inserire annotazioni di testo:
Con una pressione prolungata sulle singole annotazioni, admin e member possono vederne e modificarne dettagli come l'autore e il colore e lo spessore, se si tratta di una linea retta o di uno schizzo. Se si tratta di un'annotazione di testo, è possibile modificarne anche il colore, lo spessore, la dimensione del font e il testo stesso:
Admin e member possono anche duplicare o modificare le dimensioni di queste annotazioni.
Nota: i follower possono modificare i dettagli o duplicare o modificare le dimensioni solo delle loro annotazioni private. Per ulteriori informazioni, vedi il seguente articolo: Cosa posso fare come follower di progetto?
Recentemente, Fieldwire by Hilti ha rilasciato una nuova funzionalità: il supporto per Apple Pencil!
Con l’Apple Pencil puoi:
- Toccare due volte (double‑tap) per annullare un'annotazione (solo con Apple Pencil di 2ª generazione);
- Usare modalità multiple: mentre utilizzi la Pencil per creare un'annotazione, puoi continuare a usare le dita per spostarti, muoverti e fare zoom sulla planimetria;
-
Scrivere a mano libera e vedere il testo convertito automaticamente in una annotazione testuale reale.
Per chi usa dispositivi Samsung:
La Samsung Pen / Pencil / Pen Pro funziona con il Samsung Notebook e può essere utilizzata come stilo nell’app Fieldwire. Tuttavia, al momento non esiste un supporto dedicato ai pulsanti o ai gesti della S‑Pen, come invece avviene per l’Apple Pencil.
Annullare le annotazioni
Le annotazioni create di recente possono essere rimosse facendo clic sul pulsante "Annulla". Clicca qui per eliminare l’ultima annotazione aggiunta alla planimetria durante la sessione corrente.
Simboli
iOS:
Android:
Per utilizzare i simboli di un'annotazione, fai clic sull’icona evidenziata in basso a sinistra nello screenshot qui sotto, scegli la categoria, seleziona un simbolo e tocca la planimetria per posizionarlo.
Continua a toccare qualsiasi punto della planimetria per aggiungere lo stesso simbolo più volte!
iOS:
Android:
Alcune ulteriori note sui simboli di un'annotazione:
- Al momento non è possibile creare simboli personalizzati. È stata aggiunta la categoria delle forme geometriche per consentire l'inserimento di forme come segnaposto o simboli generici.
- La libreria di simboli è stata avviata con un set ridotto e siamo disponibili ad aggiungerne altri! Se desideri vedere nuovi simboli, invia un'email a support@fieldwire.com con un esempio del simbolo.
- I simboli di un'annotazione sono disponibili solo sulle planimetrie, non sulle foto.
Misurazioni
Puoi anche calibrare manualmente le planimetrie utilizzando lo strumento “Compass”.
Una volta calibrata la planimetria, puoi utilizzare gli strumenti di misurazione di area e lunghezza per aggiungere misurazioni alla planimetria:
Non è necessario eseguire questa conferma sui dispositivi iOS.
Selettore di colore
Spostare ed eliminare
Con gli strumenti "Sposta" o "Elimina" puoi spostare o eliminare le singole annotazioni. Attenzione: fai attenzione quando usi lo strumento "Elimina" perché le annotazioni cancellate non possono essere recuperate:
Premere e tenere premuto su attività e annotazioni
Quando si apre una planimetria sul dispositivo mobile, è possibile "tenere premuto" sulle attività e su alcune annotazioni della planimetria per poter visualizzare un menù.
Premere e tenere premuto sulle annotazioni
Quando si preme e si tiene premuto sulle annotazioni come evidenziatore, linea e forma, viene visualizzato un menu di opzioni. Queste opzioni includono: 'Dettagli', 'Duplica', 'Sposta/Ridimensiona' e 'Elimina'.
Colore pieno per le forme delle annotazioni
Premendo e tenendo premuto su un'annotazione di forma, apparirà l’opzione “Dettagli”.
Dopo aver cliccato su “Dettagli”, vedrai l’interruttore “Riempi”.
Per abilitare il riempimento della forma, basta attivare l’interruttore.
Dopo averlo attivato, la forma diventerà di colore pieno, ma puoi renderla più trasparente modificando la percentuale di Opacità: più bassa è la percentuale, più la forma sarà trasparente (meno opaca).
Filtro annotazioni su planimetrie
Quando si hanno molte attività e revisioni nelle planimetrie, si può filtrare che informazioni visualizzare. Nell'angolo in alto a sinistra è presente un'icona a forma di occhio che consente di fare esattamente questo:
Deselezionare la casella "Tutti i livelli" per nascondere le annotazioni, oppure selezionare i tipi di attività, i colori delle annotazioni e i tipi di link da visualizzare.
Maggiori informazioni
Consulta questi articoli per maggiori informazioni sull'uso delle annotazioni in Fieldwire:
- Visualizzazione e annotazione delle planimetrie (versione web)
-
Come posso modificare, ridimensionare e duplicare le mie annotazioni?