Přehled
Zobrazení plánu je část, kde se odehrávají ta pravá kouzla. Když kliknete na konkrétní plán, zvětší se a zobrazí se vám řada důležitých možností, které souvisejí s úkoly, označením a hypertextovými odkazy.
Obsah
- Zobrazení plánu
- Kategorie a filtry úkolů
- Lišta s nástroji označení
- Definice nástrojů označení
- Přiložení fotografií / souborů / formulářů / plánů ke stránce plánu
- Přejmenování plánu / popis
- Záložka akcí
- Kliknutí na plán a úkoly pravým tlačítkem
- Další informace
Zobrazení plánu
Existují dvě možnosti zobrazení plánů.
Zobrazení plánu – Uvidíte miniaturu pro každý plán v projektu.
Zobrazení seznamu – Uvidíte název plánu, úkoly s ním související, současnou verzi jakýchkoli štítků i možnost nahrát novou verzi plánu, upravit plán nebo ho odstranit.
Poznámka: Pokud v projektu je celkem >100, složky plánu budou při prohlížení projektu na webu uzavřené. V případě, že v projektu je <100 plánů nebo je třeba potvrdit názvy plánů nebo vyřešit konflikt verzí, složky plánu budou otevřené.
Poznámka: Pokud dvakrát kliknete na složku „Všechny plány“, všechny složky se uzavřou.
Kategorie a filtry úkolů
Můžete kliknout na Moje úkoly / Všechny úkoly / Úkoly podle kategorie a následně si vybrat kategorie a úkoly, které chcete na plánu zobrazit. To může přijít vhod, pokud chcete zobrazit pouze konkrétní obsah a vše ostatní z plánu odstranit.
Lišta s nástroji označení
Lišta s nástroji označení je černá vertikální lišta nalevo od zobrazení plánu.
Všechny nástroje označení jsou sestupně uvedeny níže v pořadí od shora dolů.
Definice nástrojů označení
| Zvětšení na celou obrazovku | Prohlížení plánu na celé obrazovce. |
| Přiblížení / oddálení | Zobrazení plánu více zblízka nebo zdálky. |
| Špendlík (Přidání nového úkolu) |
Pro vytvoření nového úkolu nejprve klikněte na tuto ikonu špendlíku a následně na oblast na mapě, kam chcete nový úkol umístit. Poté se vám zobrazí obrazovka pro úpravu úkolu. |
| Řetěz (Vytvoření hypertextového odkazu) |
Klikněte na tuto ikonu řetězu a následně klikněte na oblast na plánu, kam chcete hypertextový odkaz umístit. Pomocí této funkce můžete odkazovat na další stránky, přílohy, formuláře a přidávat fotografie postupu. |
| Tužka (Kreslení do plánu) |
Po kliknutí na tuto ikonu tužky můžete do plánu kreslit linky, šipky a obecná označení. Jakmile na ni kliknete, můžete si vybrat mezi běžnou linkou a několika zářivými možnostmi zvýrazňovače. V nabídce je také vytečkovaná linka. Při podržení klávesy Shift se vám budou kreslit rovné linky a šipky v přesných úhlech (Poznámka: Rovné linky při podržení klávesy Shift jsou k dispozici pouze pro tužku, ne pro zvýrazňovač). |
| Tvary (Vymezení oblasti) |
Kliknutím na tuto ikonu budete moci použít tvary k vymezení oblasti, na kterou chcete upozornit. Může to být konkrétní tvar (např. kruh nebo trojúhelník) či si můžete vytvořit tvar vlastní. Také můžete použít tvar obláčku, pokud budete chtít. Stačí přetáhnout kurzor po obrazovce, a tak určit požadovanou velikost (podobě jako u funkce textového pole). |
| „a“ (Textové pole) |
Kliknutím na tuto ikonu přidáte textové pole. Stačí kliknout a přetáhnout kurzor. Tak vytvoříte textové pole o požadované velikosti. Jakmile ho budete mít vytvořené, objeví se možnost přidat do pole komentář nebo popis. Také můžete nastavit velikost písma. |
| Pravítko (Nástroje měření) |
Kliknutím na tuto ikonu otevřete nástroje měření. Můžete kalibrovat vzdálenost, zaznamenat nové délkové míry a upravit velikost oblasti. Při podržení klávesy Shift se vám při kreslení zobrazí měřicí linky v přesných úhlech. |
| Barva (Červené kolečko) |
Po kliknutí na tuto ikonu si budete moci vybrat z několika barev. Barva ovlivňuje nastavení barevnosti tužky, zvýrazňovače, šipky, textu a cloudových nástrojů. Pokud barvu změníte na fialovou, můžete vytvářet soukromá označení. |
| Přesunutí (Zkřížené šipky) |
Kliknutím na tuto ikonu budete moci přesouvat jakékoliv označení, které jste pomocí výše uvedených nástrojů na plánu provedli. Jakmile na ikonu kliknete, všechna označení se zvýrazní a budete je moci přesouvat, kam chcete. |
| Zpět (Zpětná šipka) |
Po kliknutí na tuto ikonu se ihned odstraní vaše poslední označení, které jste na plánu provedli během současné práce s plánem. |
| Odstranit (Odpadkový koš) |
Pokud na ikonu odpadkového koše kliknete, zvýrazní se všechna označení na plánu. Když následně na některé z nich kliknete, označení se odstraní. Při používání tohoto nástroje buďte opatrní – jakákoliv označení, která odstraníte, se odstraní i všem ostatním v projektu. Poznámka: Pomocí této funkce lze odstranit i odkazy. |
Poznámka: Nyní lze označit i fotografie, které jsou přímo přiložené k plánům, formulářům a žádostem o informace.
Přiložení fotografií / souborů / formulářů / plánů ke stránce plánu
Kliknutím na ikonu „Řetěz“ na liště s nástroji označení získáte možnost připojit ke stránkách plánu odkaz na celou řadu dokumentů.
První možností je připojit odkaz na jinou stránku plánu:
Zvolením této možnosti můžete části plánu přímo propojit s jinými plány, které již máte ve Fieldwire nahrané.
Druhou možností je ikona fotoaparátu, která vám umožňuje připojit ke stránce plánu fotografie ze záložky plánů nebo z počítače:
Třetí možností je ikona kancelářské sponky, která vám umožňuje přikládat ke stránkám plánu soubory:
Poznámka: Ve Fieldwire můžete vyhledat existující soubory ve formátu PDF i CSV. Když však soubor vyberete a kliknete na něj, můžete otevřít jen soubory PDF. Soubory CSV se stáhnou do vašeho počítače, kde si je budete moci zobrazit.
Čtvrtou možností je ikona desek na dokumenty, která vám, pokud máte předplatné Business, umožňuje ke stránkám plánu přiložit stávající formuláře.
Přejmenování plánu / popis
Kliknutím na nadpis můžete plán přejmenovat nebo upravit popis.
Kontrola verzí
Pokud na konkrétní stránce kliknete na tlačítko „Kontrola verzí“, zobrazí se vám jednotlivé poznámky k plánu a budete moct upravovat Poznámky a Popis verze. Také můžete změnit pořadí verzí, a tak určit, která verze se bude zobrazovat jako první a bude aktivní verzí plánu.
Zároveň můžete upravit i Popis verze pro několik plánů najednou.
V tomto článku se o tom dozvíte více.
Zobrazení starších verzí
Každá nahraná verze plánu je označena datem, kdy byla nahrána (popis můžete upravit v části Kontrola verzí). Úkoly, hypertextové odkazy a označení se budou mezi verzemi přesouvat.
Porovnání plánů
Pokud máte prémiové předplatné, můžete si porovnat dvě verze téhož plánu nebo dva zcela odlišné plány.
Zobrazení úkolů
Úkoly související se stránkou jsou uvedené na pravé straně. Úkoly můžete upravovat pod každým špendlíkem nebo ve sloupci na pravé straně obrazovky. Stačí kliknout na špendlík nebo úkol a úkoly se vám otevřou a vy je můžete upravovat.
Filtrování úkolů
Úkoly na plánu můžete filtrovat podle několika atributů:
Tip: Pro více informací o tom, jak pracovat s umístěními, si přečtěte článek Hierarchizovaná umístění.
Ikona oka
Ikona oka v pravém horním rohu vám umožňuje dočasně skrýt veškerá označení a úkoly na plánu. Když na ni kliknete, budete si moci zvolit, jaké vrstvy plánu (úkoly, označení, odkazy nebo fotografie) chcete skrýt. Můžete skrýt i všechny vrstvy zároveň. Opětovným kliknutím na ikonu se vám zase zobrazí.
Otevření nedávno zobrazených plánů
Záložka akcí
Záložka „Akce“ vám umožňuje upravovat různé prvky plánu, včetně jeho čísla a popisu, změřených rozměrů a všech štítků, které v rámci organizace dokumentace používáte. Projekty vedené pod předplatným Pro nebo Business mají také možnost vyexportovat plán ve formátu PDF nebo ho porovnat s jinými stránkami.
Možnosti záložky akcí
| Úprava čísla / popisu |
Můžete upravit název a popis plánu. |
| Úprava rozměrů |
Rozměry můžete ručně upravit a přepsat jakékoli jiné údaje spojené s plánem. Pokud vyberete více plánů, můžete rozměry u vybraných plánů upravovat hromadně. |
| Správa štítků |
Můžete přidávat a odebírat štítky plánů. |
| Přetočení plánu | Plán můžete přetočit o 90 stupňů doleva a 90 nebo 180 stupňů doprava. |
| Export ve formátu PDF |
Exportovat PDF s označením mohou pouze prémioví zákazníci. Poznámka: Pro export plánu s úkoly budete muset vygenerovat výkaz a zvolit „Plány“. |
| Porovnání |
Porovnání verzí stejného plánu nebo dvou různých plánů. Poznámka: Podívejte se výše na „Porovnání plánů“. |
| Odstranění plánů |
Administrátoři mohou plány odstraňovat kliknutím na červené tlačítko pro odstranění. Následně jsou požádání, aby odstranění potvrdili. Poznámka: Pokud plán z projektu odstraníte, budou odstraněna i všechna označení související se stránkou. Jakékoliv úkoly spojené se stránkou se stanou nezařazenými úkoly a uvidíte je na hlavním panelu Úkolů.
|
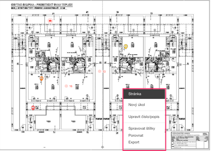
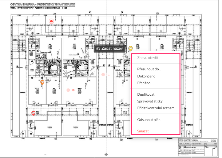
Kliknutí na plán a úkoly pravým tlačítkem
Jak je vidět níže, kliknutím pravým tlačítkem na plán nebo na úkoly na plánu si zobrazíte nabídku možných akcí.
Kliknutí pravým tlačítkem na plán
Když kdekoliv na plánu kliknete pravým tlačítkem (jinde než na úkolech), můžete si zobrazit nabídku možností, která zahrnuje: „Nový úkol“, „Upravit číslo/popis“, „Spravovat štítky“, „Porovnat“ a „Exportovat“.
Kliknutí pravým tlačítkem na úkol
Když pravým tlačítkem kliknete na úkol, můžete si zobrazit nabídku možností, která zahrnuje: „Dokončit“, „Ověřit“, „Duplikovat“, „Spravovat štítky“, „Přidat kontrolní seznam“, „Přesunout mimo plán“ nebo „Odstranit“.
Další informace
Video návody v angličtině
Exportování plánů
Soubory a hypertextové odkazy